SweisKloss | Design + Construct
About Our Process Featured Projects Projects in Progress Blog Building in Fire Zones Contact
AboutOur ProcessFeatured ProjectsProjects in ProgressBlogBuilding in Fire ZonesContact
SweisKloss | Design + Construct
A Design + Construct Firm
Screenshot 2025-10-02 at 11.53.18 AM.png
1-Designs.png
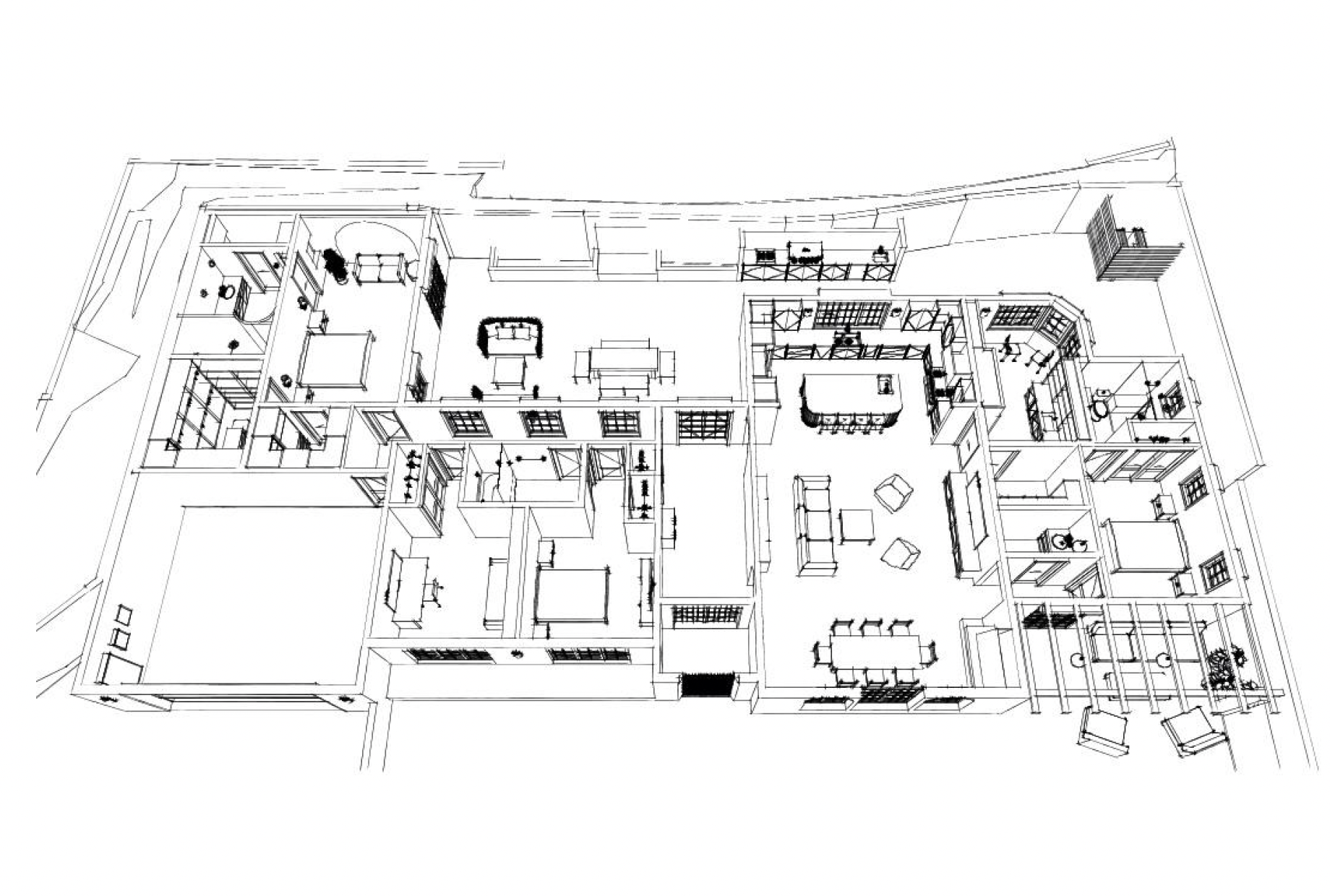
Aerial Shot.png
kitchen sk pen2.jpg
2-IMG_3533.jpg
3- IMG_3534 2.jpg
Screenshot 2025-08-11 at 5.09.32 PM.png
Screenshot 2026-01-07 at 11.34.49 AM.png
1 2 3 4 5 6 7 8
Previous Next
Screenshot 2025-10-02 at 11.53.18 AM.png
1-Designs.png
Aerial Shot.png
kitchen sk pen2.jpg
2-IMG_3533.jpg
3- IMG_3534 2.jpg
Screenshot 2025-08-11 at 5.09.32 PM.png
Screenshot 2026-01-07 at 11.34.49 AM.png
SweisKloss
1424 4th Street, Suite 501,
Santa Monica, CA, 90401,
United States
310-394-6460 info@sweiskloss.com
Hours
SweisKloss LifeClient LoginAwards + PressHelpful LinksCareersTestimonialsPrivacy Policy
##